
纤维空气分布器,也称织物纤维风管或布袋风管,是一种由特殊织物制成的、集空气输送与分配于一体的柔性送风末端。它能够有效地避免传统通风系统使用时所遇到的表面结露、灰尘积聚及屋顶荷载大等问题,创造出一个健康洁净的室内环境。FAERY是健康通风系统领导品牌,来自德国,军工品质。
纤维空气分布器最早应用于食品冷冻冷藏行业,仅仅通过纤维表面渗透送风。随着科技的发展,纤维空气分布器送风形式越来越多样化,空气通过采用渗透性不同的纤维表面的微空隙和加工成不同形式的送风口可以均匀地输送空气到需要的场所。
纤维空气分布器的合理设计不仅体现在优美的外观,更重要的是能够提高能源利用率,达到节能效果。随着低温冷链市场的日益壮大,提高能源利用率具有重要的现实意义。法瑞运用多项专利技术,与德国PhG合作研发冷库专用Faeryduct-C法瑞管,创造最佳食品储藏环境。
纤维空气分布器的实际应用工程案例
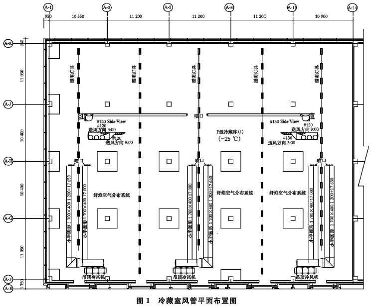
工程概况:冷藏室温-25℃,相对湿度85%,净高5.2m,深度44m;室温波动要求±1℃;室内采用固定货架摆放货品,允许风管在无风状态下安装高度为0.6m。
风机参数:送风温度-28.8℃,湿度94%,单台整机风量27744m³/h,海拔1013mbar。
本工程案例属于低温送风系统。低温送风属于非等温送风。由于送风温度低,室内会出现“冷气”下降,“热气”上浮,从而出现“结雾”(在冷藏室进出货物期间易发生),甚至出现“挂霜”或“结冰”现象,导致系统节能效果差,甚至比传统的送风系统能耗还高。
初步设计方案:采用小半圆形法瑞空气分布器,分布器安装高度0.5m,设计长度20m,末端采用喷口送风形式,末端风速0.3-0.5 m/s,“冷气”沉降至地面,“热气”贴近地面回到回风区。
经过CFD模拟计算验证,最终确定方案为小半圆形法瑞空气分布器,安装高度0.4 m,T型轨道安装,设计长度17m,主干管采用3:00和9:00方向多排孔送风,末端设20个喷口,采用喷口射流送风,人口风速为8.1 m/s,机外余压100Pa。
本项目的纤维空气分布器如图1-图4所示。



由此而匹配的单台冷风机的装机功率为4.2KW。
若采用传统直吹送风方式,单台冷风机的装机功率为6.3KW。实际运行监测,末端平均风速为0.5 m/s室温波动±0.8℃左右,管道无抖动现象。由此可见,合理的入口风压,既目旨避免因余压不足造成整个送风系统的运行不畅,又能避免因选择的风机功率太高而带来的运行成本增加。
Faeryduct-C法瑞管为冷库食品安全而生,为客户提供经济、节能的设计方案,以提高食品的质量、减少运行成本,更有利于客户增强市场竞争力。服务电话:4006687188