
一、项目简介
黑龙江省鑫玛热电集团正式成立于2006年4月,是以热电联产项目为主业多种经营公司。集团目前固定资产总额为12.5亿元人民币,项目投资达到12.3亿元人民币,年利税1.2亿,员工总数1299人。主要做热电能源的开发、经营和管理;房地产的开发;煤炭、耐火材料的生产和销售;市政土方工程的建设与维护;五金建材、果菜市场的经营销售等。

二、使用环境及用户要求
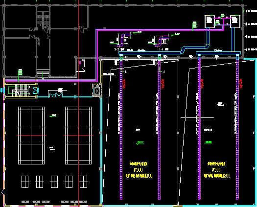
哈尔滨鑫玛热电会所中的羽毛球馆、游泳馆、种植园等三个场所使用法瑞管道式布风口通风,通风管在网架下吊装,顶距网架梁底300mm。羽毛球馆管道吊挂高度9米、10米,游泳馆管道吊挂高度8米、9米;种植园管道吊挂高度5.5米、6.5米。羽毛球馆要求风速小,不影响小球的方向;游泳馆要求舒适度强,无吹风感;种植园要求送风均匀。
三、设备参数
空调选用3台热回收空气处理机组,每台风量10000m3/h,机外余压300Pa。
四、FAERY方案
1、 羽毛球馆采用SP2.0MESHFlow网条送风,送风风速小,满足国家体育馆小球的风速要求,距离地面7米风速为0.25m/s;
2、游泳馆采用SP4.0SonicFlow排孔送风,送风均匀,无吹风感,满足舒适度要求;
3、种植园采用SP4.0SonicFlow排孔送风,送风均匀,园区风速约0.3m/s。
4、管道式布风口安装高度较高,为5.5米-10米,在布置时遇到梁过不去,采用S型弯处理,满足安装要求;管道式布风口重量轻,对结构承载小,安装简单快捷,安装费用低。
